Nach einem Grossbrand im Sommer 2023 in der SWISS KRONO AG brannten Hallen und Maschinen ab, wo Altholz recycelt und für die Produktion aufbereitet wurde.
Um möglichst bald wieder die Produktion mit Recycling-Holz aufzunehmen, wird der gesamte Recyclingbereich neu geplant, um so in naher Zukunft wieder mit ausgebauter Kapazität und noch wirtschaftlicher zu produzieren.
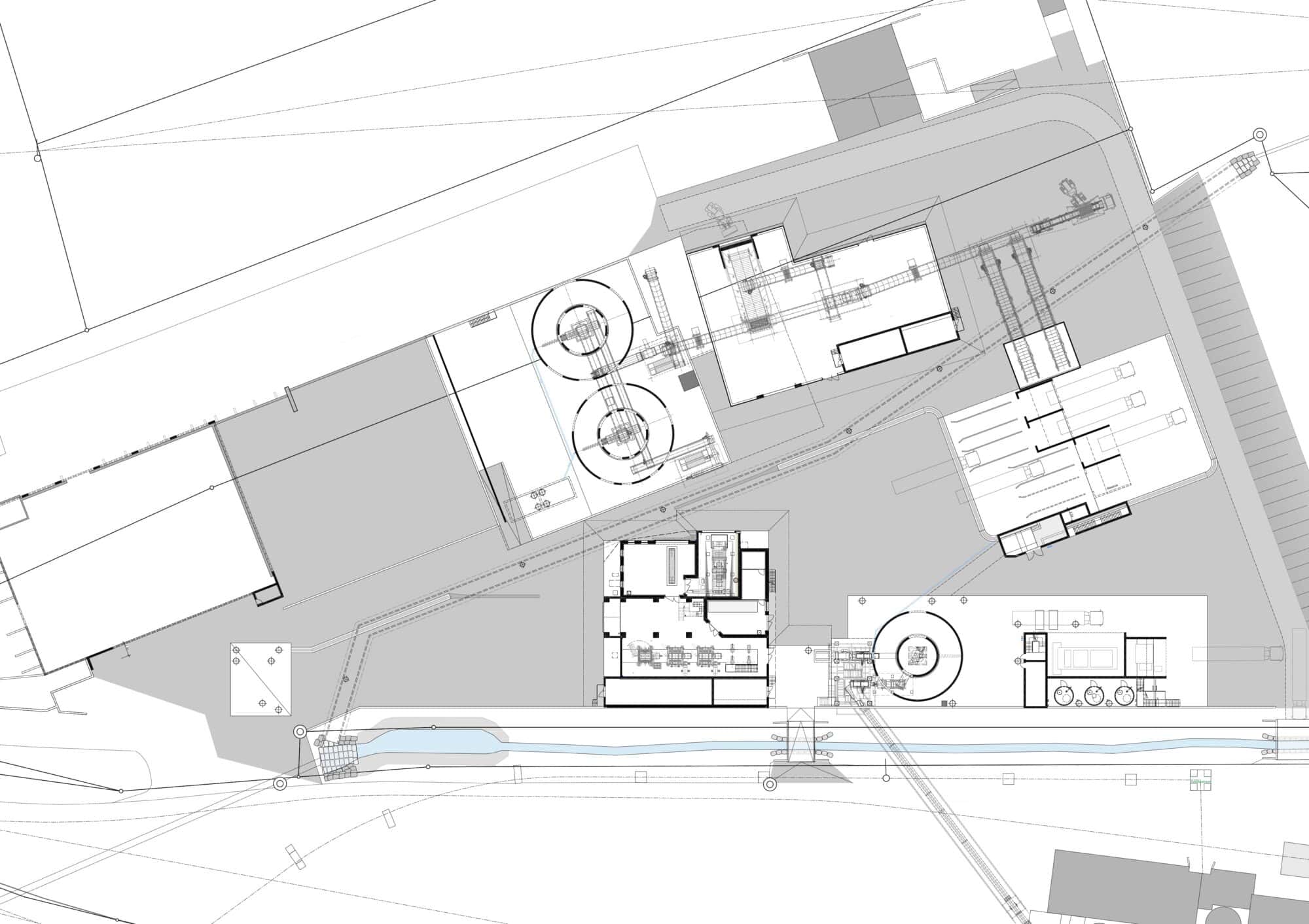
Für dieses Vorhaben wird der Bereich Holzplatz zusammen mit der Bauherrschaft und diversen Fachplaner neu geplant. Die schiere Grösse führt zu einer Unterteilung der Baufelder in der Planung und auch später in der Realisierung.
Aus dem Brand wurden Lehren gezogen und so ist ein Hauptmerkmal des künftigen Projekts die Sicherheit für den Betrieb, aber auch die Umwelt. Mit einem ausgeklügelten System soll so kein kontaminiertes Wasser in die Umgebung gelangen und es werden mit unterirdischen Becken Regenwasser für eine allfällige Brandbekämpfung gesammelt.
Da bereits zukünftige Bauten und Anlagen bei der SWISS KRONO AG in Planung stehen, werden diese bei der jetzigen Planung berücksichtigt und entsprechende Platzhalter vorgesehen.
Das Bauvorhaben soll im Januar 2025 starten und bereits vor Ende 2025 in Betrieb genommen werden. Dafür ist eine gute Kommunikation und Zusammenarbeit mit der Bauherrschaft, Fachplanern, Behörden und Unternehmern die Voraussetzung für einen reibungslosen Ablauf.
Aktuelle Informationen über das Projekt finden Sie hier.

